Schulanlage Dorf Dietlikon
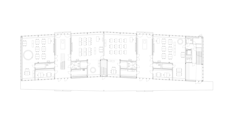
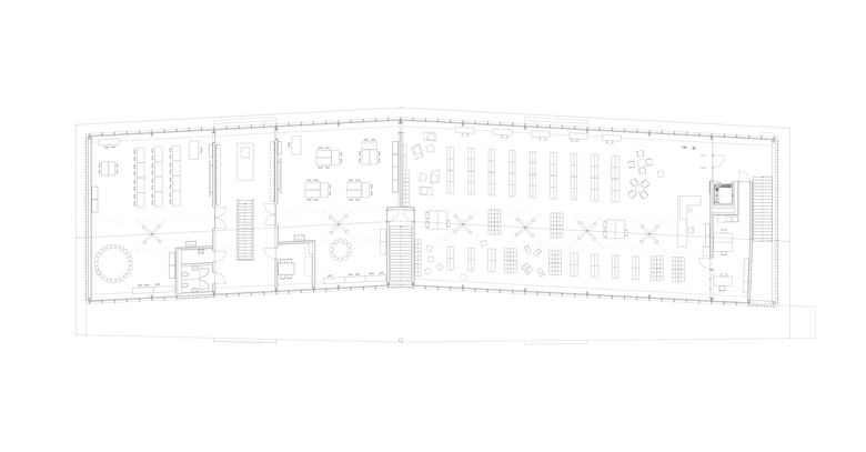
Das Schulhausareal Dorf befindet sich am Rand des alten Dorfkerns von Dietlikon. Der zweigeschossige Neubau beherbergt sechs Grundstufenzimmer und die neue Gemeindebibliothek. Mit den beiden bestehenden Schulhäusern fasst er einen Hof, der als Pausenplatz dient.
Über den zweigeschossig gedeckten Eingangsbereich, der durch das weit auskragende Vordach und den Sockel gebildet wird, gelangt man in die Eingangshallen. Diese dienen gleichzeitig der Erschliessung mit Garderoben, Aufenthaltsräumen, einem Zugang zum Garten und einem gedeckten Aussenbereich. Vier Grundstufenzimmer befinden sich im Erdgeschoss, zwei im Obergeschoss des Neubaus. Jeweils zwei Schulzimmer mit Gruppen- und Materialräumen, einem Lehrerzimmer und Nasszellen bilden eine Einheit.
Der Zugang zur Bibliothek im Obergeschoss erfolgt über den baumbestandenen Platz im Süden des Areals. Der Bibliothekssaal öffnet sich komplett an den Längsseiten des Gebäudes und gewährt Ausblicke zum Pausenplatz und in die Umgebung.
Die Grösse des Neubaus lässt ihn massstäblich für den Ort und für seine Nutzer erscheinen. Die Verwendung des ortsüblichen Baustoffs Holz bindet das Haus darüber hinaus in seine Umgebung ein. Die mit vertikalen Holzlamellen verkleidete Fassade ermöglicht durch ihr Spiel mit offenen und geschlossenen Elementen Durch- und Einblicke: Das Haus wirkt leicht und transparent. Ein lichtgrauer, seidenglänzender Anstrich verleiht dem Holzbau Abstraktion und fügt ihn optisch mit den beiden vorhandenen Schulbauten zu einer Einheit zusammen.
Wettbewerb 2008, 1. Preis
Ausführung
2011—2014
- Jahr
- 2014
- Project Status
- Gebaut
- Bauherrschaft
- Schulgemeinde Dietlikon







