Hôpitaux Lyon Sud Metro Station
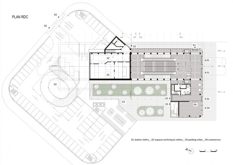
The metro station for Hopitaux Lyon Sud (HLS) on the line B, is part of a vast urban plan in the area of Vallon des Hôpitaux. The station is set within the organization of a large infrastructure hub that several transports modes (cars, buses, railways…) Our intention for this projetct is to reveal the urban signification of the subway through the construction of a clear and organized scheme. The main access integrates all the vertical circulation of the station within a same central space. The connection room is located at the ground level and therefore stays directly connected to the city and the rest of the hub. The above ground part of the station will be completed with complementary programs like bike storage, information desks, stores… The architectural principle is focused on serenity and timelessness of spaces. Our intention is to avoid using unnecessary artefacts. To do so, we have defined a few architectural elements that are repeated and through gentle alterations help us work on all the different scales of the project. This work has allowed us to enhance the sensorial qualities of the space such as lights, sounds and materials, and creates a strong identity: a metropolitan infrastructure that uses technical aspects to serve spatial qualities for the users.
- Jahr
- 2023
- Project Status
- Gebaut
- Bauherrschaft
- SYTRAL Mobilités
- Team
- EGIS Rail, SYSTRA, AARTILL, INTERFACE, SIBAT, Atelier Zündel Cristea










