SND Concept Store, Shenzhen by Various Associates
Project name: SND Concept Store, Shenzhen
Client: SND
Location: Shenzhen, Guangdong, China
Area: 500 sqm
Completion time: October 2022
Design firm: Various Associates (https://various-associates.com/)
Lead designers: Qianyi Lin, Dongzi Yang
Design team: Bo Huang, Junrui Zhang, Yuewen Cao
Photographs: SFAP
A grand, immaculate dune evokes an otherworldly atmosphere, detached from the modern world and providing a serene escape from the urban chaos. It creates a pristine white stage against a pitch-black backdrop, displaying the collections of clothing like precious treasures and luring visitors to embark on an exploration.
1. Seeking the distant memory of dunes in the city
What kind of treasures are hidden in a mine under the dune?
Various Associates and fashion boutique SND have created a space that transports visitors to a distant memory of iron and sand in the midst of a bustling city.
The black path on one side of the dune resembles a deep mine. Bright mining lights illuminate the way and guide explorers to discover hidden treasures beneath the sand. As visitors turn back, the steel grille offers glimpses of the dune's light and shadows.
2. Extending an inspiring space through a continuous mountain
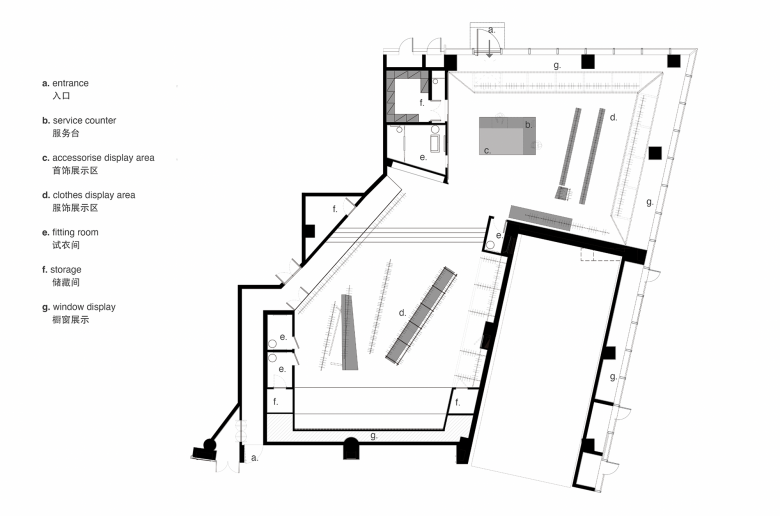
The design team's main focus was to craft a distinctive spatial encounter within an already-existing building. By making use of the existing floor height, they managed to obscure the main retail area beneath the dune and create a large-scale structure that results in an immersive and profound atmosphere reminiscent of ancient times.
The grand, immaculate dune evokes an otherworldly atmosphere, detached from the modern world and providing a serene escape from the urban chaos. The mountain-shaped structure, which is column-free, boasts an impressive diagonal span of 21 meters. This not only creates a visually striking display from the exterior, but also provides space for clothing displays and fitting rooms on the inside.
The large-span structure is carefully crafted to create the dune-shape space that not only meets mechanical requirements but also conceals pipelines and other components, resulting in a space with a clean and pure aesthetic. As customers navigate in the thoughtfully planned spatial sequence, they feel as though they are deep in a mountain, fully immersed in a unique and inspiring experience.
3. The breath of the earth, a milestone of the Iron Age
The use of iron bars is an extension of the geometric design employed in SND's first store in Chongqing. Display fixtures inspired by raw iron materials are placed throughout the space, creating a striking contrast between black metal and the quiet color backdrop. The use of organic, non-square shapes generates a dynamic tension within the monochrome space, achieving a balance between power and aesthetics.
The custom-made display table stands out like a rock rising from the sand, illuminated by shifting light and shadows. With its versatility, it serves multiple purposes and provides the space with various options to showcase the brand's identity while embracing trends with confidence.
The details are meticulously crafted to create a distinctive texture. The black iron frames are emphasized by orderly lights, producing a mesmerizing realm of art that arises from the interplay between the rugged blackness and the delicate whiteness.
4. Diverse scenes highlighted by light and shadows
As customers explore and select from the items on display, the continuous light creates a clear circulation route that guides them on a spiritual journey and naturally leads them to the lowest point of the space.
The innovative lighting system brings the black-and-white space to life through the play of light and shadows. Focused lighting accentuates the textures of the fabrics, while diffused lighting reveals the expansive nature of the space. The versatile lighting arrangement creates endless possibilities for the retail space.
5. A place of serenity under the ‘moonlight’
The interplay of bright light and deep shadow creates a sacred and private runway for the fitting rooms located beneath the mountain, as if illuminated in bright moonlight.
The VIP fitting rooms feature sensor lights designed to evoke a sense of ceremony. As customers enter the space, the ambient light gradually turns on, enhancing the reflection in the mirror and providing customers with an extraordinary experience of time and space.
The unique ambience created by light and shadow results in a spiritual space detached from the secular world. Here customers encounter the ancient dune and embark on a spiritual journey that carries them through diverse spaces and ultimately leads them into a serene corner for self-admiration.
6. A storytelling space with a profound image
In this project, Various Associates highlighted the brand's distinctive character through a vast and expansive image, creating an unbounded narrative for the space through design. The profound dune acts as a reflection of the customers' inner selves. The SND Concept Store, Shenzhen stands like a silent milestone amidst a bustling city, recounting an epic tale of sand and iron.
- Any
- 2022
- Project Status
- Construït
