Qingxi Culture and History Museum by UAD
Project name: Qingxi Culture and History Museum
Client: Ninghai Cultural Tourism Group Co., Ltd.
Location: 422 Township Road, Sangzhou Town, Ninghai County, Ningbo City, Zhejiang Province, China
Area: 1,691 square meters
Design firm: The Architectural Design & Research Institute of Zhejiang University Co., Ltd. (UAD)
(www.uad.com.cn)
Architectural design: Wu Zhenling, Zhang Jiachen, Li Ning, Wang Yingni, Chen Yu
Structural design: Jin Zhenfen, Shen Jin, Ni Wenhao
Water supply & drainage design: Chen Ji, Chen Fei
Electrical design: Zhen Guoxing, Ding Li
HVAC design: Guo Yinan, Ren Xiaodong
Smart design: Jiang Bing
Interior design: Li Jingyuan, Fang Yu
Landscape design: Wu Weiling, Xu Conghua, Zhu Jing
Construction economics: Chu Qianbo
Photography: ZYStudio, Zhao Qiang, Ding Junhao
Awards: Outstanding Engineering Survey and Design Award (First Prize), WAN Awards (Gold)
Background
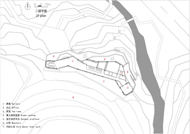
Located in Nanshangang, Sangzhou Town, Ninghai County, Zhejiang, the project is positioned as a small cultural and tourism building that integrates a tourist center and spaces for displaying and experiencing the local history and culture.
The site is far away from the hustle and bustle of city life, with only one country road connecting several villages nearby. And there are local villagers working in fields around the site every now and then. Due to great height discrepancy, the plot features recessed platforms ascending from north to south, with a broad view on the north side. The site faces terraced fields on the east and west sides, and embrace the view of rolling mountains in the distance.
Nature
Respecting nature and blending into environment is the key design principle of the project.
The project sits on beautiful terraced fields, close to mountains and water. The exterior spaces are created in a way of adapting to the site's terrain and natural setting. The architectural silhouette conforms to the plot's terraced landform, to blend into the environment. And the rooftops are planted with crops, to harmonize with the terraced fields nearby.
The interior spaces are created in accordance with the external form. Irregular walls and staggered roofs make every space unique and full of variations, like the diverse paths in the countryside. Natural light penetrates windows and skylights, and falls onto the walls and the floor, generating varying scenes in the space.
Construction
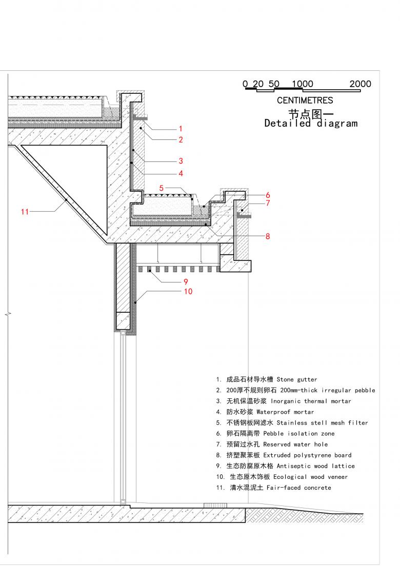
In the construction process, local materials were selected and brought into full play. Local experienced stonemasons were employed to construct the building by the use of local natural stones, to present the most original features of terraced fields.
Based on simple techniques and methods, the whole building harmonizes with surrounding terraced fields and mountains both in texture and in form. Details such as stone window frames and drip edges were meticulously made by craftsmen.
Materials selected for interior space reveal the authenticity of textures. The fair-faced concrete ceiling, the white diatom mud wall, and the wood-colored doors and windows, embody the primitive aesthetics of the countryside architecture.
Recognition
Sited at a corner of the valley, the rustic building "dissolves" into the mountain and river landscape that has been existed for centuries.
Environment is a unity that integrates natural and artificial spaces with different functions. As a substantial building in such a context, the project embodies not only style and appearance, but also expresses long-standing social, cultural and technical systems and the recognition of nature and local features.
Epilogue
The architecture features a volume that dissolves into the environment and delicate spaces crafted by appropriate techniques. The building dialogues with the surroundings such as terraced fields, creek, bridge and paths. Walking through the bridge above the stream, and approaching the building nestling under mountains, visitors will continuously encounter unexpected surprises along the way.
For this project, the designers created a small cultural destination that reflects local and site features in a low-profile gesture and a vernacular form.
- Any
- 2020
- Project Status
- Construït

























