Jugendherberge in der Kaiserstallung

Burg 2, 90403 Nürnberg, Germany
Fotografia © Studio Bruno Franchi

Umbau, Sanierung und Modernisierung. Zukunftsorientierte Geamtmaßnahme eines exponierten Baudenkmals.
Umfang: 360 Betten, 93 Zimmer, Rezeption,Restaurant, Bistro, Lounge, Seminar- und Veranstaltungssaal. 6.500 qm BGF

Kunde
Deutsches Jugendherbergswerk
Landesverband Bayern e.V.

Leistung
Lph 2-9
Denkmalgerechte Sanierung, raumbildender Ausbau, Innenarchitektur

Planungs- / Bauzeit
2010 - 2015 / 01/13 - 04/15

Projektbeteiligte
ARGE Kaiserstallung Nürnberg:
Projektleitung raumb. Ausbau Bruno Franchi

Fotos
Robert Pupeter, München
Stefan Meyer, Berlin/Nürnberg

Fotografia © Studio Bruno Franchi
Fotografia © Studio Bruno Franchi
Fotografia © Stefan Meyer
Fotografia © Studio Bruno Franchi
Fotografia © Robert Pupeter
Fotografia © Robert Pupeter
Fotografia © Robert Pupeter
Fotografia © Robert Pupeter
Fotografia © Stefan Meyer
Fotografia © Robert Pupeter
Fotografia © Studio Bruno Franchi
Fotografia © Studio Bruno Franchi
Fotografia © Robert Pupeter
Fotografia © Stefan Meyer
Fotografia © Robert Pupeter
Fotografia © Robert Pupeter
Fotografia © Robert Pupeter
Fotografia © Studio Bruno Franchi
Fotografia © Studio Bruno Franchi
Fotografia © Robert Pupeter
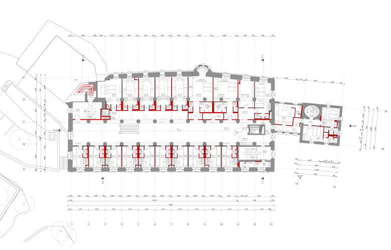
Dibuix © Studio Bruno Franchi
Dibuix © Studio Bruno Franchi
Dibuix © Studio Bruno Franchi
Fotografia © Stefan Meyer
Any
2014

Altres projectes per Studio Bruno Franchi 

Wohnhaus Link
Pöcking, Germany
Kolonialhotel “Bell Rock”
Rust, Germany
Hofstelle Ebn
Simbach, Germany
Haus der Bürger und Vereine
Pöcking, Germany
Japanisches Onsenbad
Radolfzell, Germany