House for a Pianist
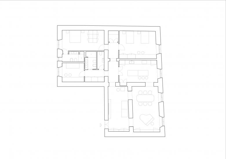
The 150 sqm apartment is on the fourth floor of a late 19th-century building in the heart of the Esquilino district of Rome, one of the capital’s most dynamic and profoundly changing neighbourhoods.
The project came from the request of the client, a pianist and his family, to transform a space with a rigid configuration, made up of a sequence of rooms and a distribution corridor, into a contemporary and dynamic environment while maintaining a “classic” character that preserves the identity of the place.
The design solution was to use dark walnut wood as the common thread of the entire project, creating a domestic infrastructure based on a system of custom-made furnishings such as wardrobes, boiseries, kitchen, bathoroom cabinets, etc.
The choice of dark wood was associated with the desire to recall a classic environment by contrasting it with a light oak parquet floor which, combined with white walls, helped lighten the colors of the space, generating an interesting contrast between classic and contemporary.
- Any
- 2024
- Project Status
- Construït















