Brown University John Hay Library
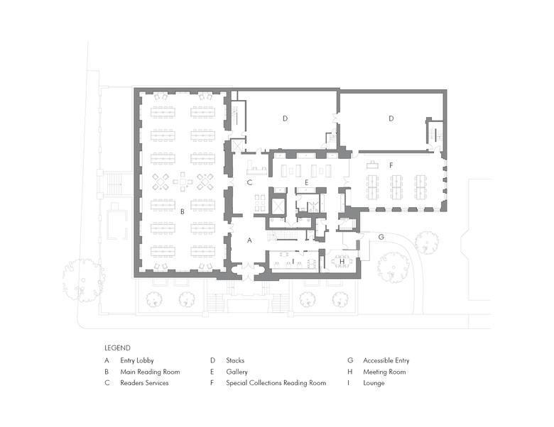
Built in 1910 by architects Shepley, Rutan, and Coolidge, the John Hay Library is Brown University’s first dedicated library building. Originally, the grand Reading Room contained tall coffered ceilings, carved oak shelving, hanging pendants, and an open plan. Over the years numerous renovations occurred which broke the Reading Room up into three smaller spaces amongst other changes. Programmatically it became the library for Special Collections in the 1960s. Selldorf Architects’ main objective in the renovation was to return a vital part of Brown’s heritage to the campus through a design that echoes the original library but also responds to the needs of a contemporary university. The design reestablishes the original proportions of the Reading Room, restores oak shelving displays, clarifies the once confusing circulation and welcomes visitors with a more gracious entry sequence. Glass doors and inset wall vitrines set-off the Reading Room and ensure a greater level of transparency and communication within the building. Key to restoring the original grand scale of the Reading Room was reintroducing pendant lights that hang from the 25 foot coffered ceiling. These new large patinated brass lamps are based on the design of the original 1910 fixtures and provide ambient lighting while table lamps provide illumination for more intimate reading. The firm created a new Special Collections Reading Room, public exhibition gallery, conference room, and lounge, and redesigned other key ground floor spaces including the entry lobby and Reader Services.
- Any
- 2014









