10 Bond Street
10 Bond Street, 10012 New York, NY, USA
Visualització © Courtesy of Selldorf Architects
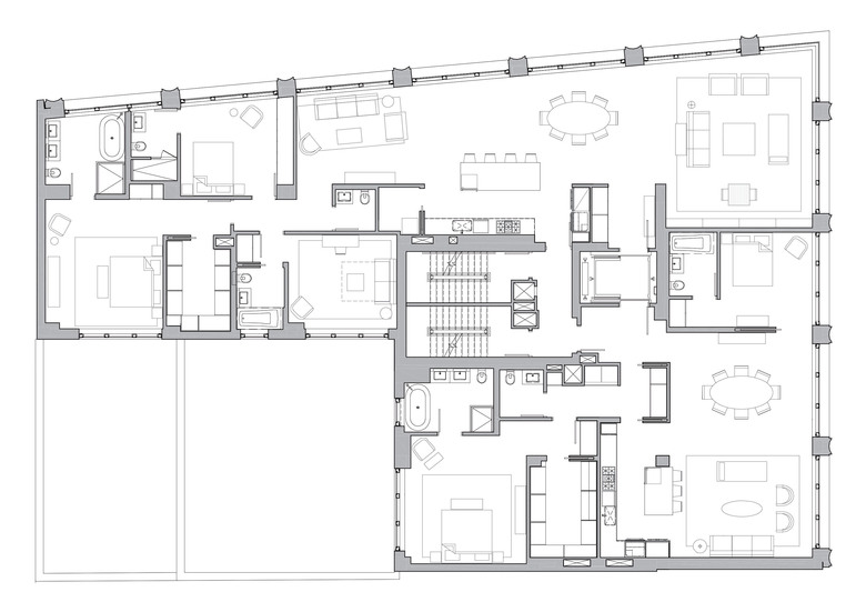
The new condominium is located at the corner of Lafayette and Bond Street in New York’s NoHo neighborhood, a district characterized by loft buildings with a high level of craftsmanship. The design for this 34,000 sf building is a contemporary reflection of the neighborhood’s architectural traditions with a sculpted terracotta façade and weathered steel details. The seven story building contains eleven units: ten, two or three bedroom units and a penthouse with a large trellis-covered terrace. Retail shops and an entrance lobby are located on the ground level, which is distinguished by a façade of rich mahogany, slate, and glass.
Visualització © Courtesy of Selldorf Architects
Visualització © Courtesy of Selldorf Architects
Visualització © Courtesy of Selldorf Architects
Visualització © Courtesy of Selldorf Architects
Visualització © Courtesy of Selldorf Architects
Visualització © Courtesy of Selldorf Architects
Dibuix © Courtesy of Selldorf Architects
Hauser & Wirth 18th Street
New York, NY, USA
The Clark: Museum Building
Williamstown, MA, USA
David Zwirner
New York, NY, USA
Gladstone Gallery 21st Street
New York, NY, USA
Neue Galerie New York: Museum for German and Austrian Art
New York, NY, USA