Turnhalle plus X
Die Turnhalle plus X deckt als Schul- und Vereinssporthalle sowie als Stadtteilzentrum nicht nur ein breites Nutzungsspektrum ab, sondern ist auch ein innen und außen vielfältig bespiel- und benutzbares Objekt.
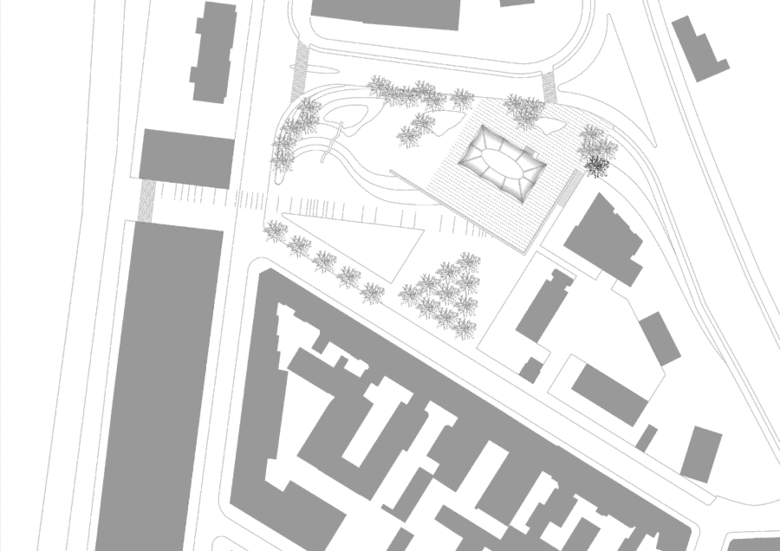
Die Situierung der Sporthalle ergibt sich aus dem topografischen und städtebaulichen Kontext. Das Besondere daran ist, dass die Baukörper so in das bestehende Gelände eingepasst sind, dass sich daraus eine benutzbare Freizeitlandschaft entwickelt. Die Freiflächen werden nicht durch das Gebäude begrenzt, sondern über das Gebäude erweitert und sind erst durch das Gebäude vollständig, das Gebäude selbst wird zur Freifläche.
Auf dem Niveau der Freherstraße wird diese selbst über ein als Platzfläche ausgebildetes Plateau nach Süden erweitert. Von Süden schiebt sich die Freifläche nördlich der Werftstraße unter dieses Plateau. Alle inneren Nutzungen der Turnhalle plus X liegen in der Überschneidung dieser beiden Ebenen. Es bedarf also keiner Treppen und keines Aufzugs.
Die einzelnen Nutzungszonen gruppieren sich entsprechend ihres Nutzungscharakters von der Platzfläche im Süden über einen Veranstaltungsraum mit Bewirtung und einen Gymnastikraum bis zum Kern des Gebäudes, der Sporthalle. Alle Raumzonen sind eigenständig nutzbar, können aber auch wechselweise untereinander oder alle miteinander zu einem Veranstaltungsort für bis zu 800 Personen verbunden werden.
Das Projekt zeichnet sich durch ein Energie- und Haustechnikkonzept aus, das auf lange Sicht die Energieressourcen schont, die CO2-Emissionen reduziert und gleichzeitig eine hohe Aufenthaltsqualität bietet.
Zur Reduzierung des Primärenergiebedarfs werden alle Räume durch eine Ersatzluftanlage mit Wärmerückgewinnung konditioniert, die sich im Winter die internen Wärmegewinne zu nutze macht und über die Nacherwärmung der Zuluft den Heizwärmebedarf weitgehend abdeckt. Lediglich die Erschließungsflächen sind mit statischen Heizkörpern ausgestattet.
Die Speichermassen der sichtbaren Gebäudekonstruktion aus Stahlbetonfertigteilen sorgen für ein ausgeglichenes Raumklima, im Sommer durch Nachtkühlung, im Winter durch Speicherung der Heizenergie und der internen Lasten in den massiven Wänden und Decken. Während der Heizperiode vermindert eine wärmebrückenfreie Dämmung der Gebäudehülle die Wärmeverluste.
Den elektrischen Energiebedarf reduziert eine nutzungsgesteuerte, mit hocheffizienten Leuchtmitteln und Vorschaltgeräten bestückte elektrische Beleuchtung auf das notwendige Minimum. Selbstschlussarmaturen sorgen für einen geringen Wasserverbrauch.
Das Raumvolumen der Sporthalle durchstößt das obere Freiflächenplateau und bildet mit seiner Dachfläche ein drittes Niveau. Auf der Dachfläche befindet sich ein vielfältig nutzbarer Bolzplatz, der als signifikantes Zeichen mit einem sphärisch gekrümmten Netz in Form einer Krone umhüllt ist.
Am Abend wird die Turnhalle plus X zum Lichtobjekt, das die Aktivitäten eines lebendigen Stadtquartiers wiedergibt. Über die vielfältigen sozialen und kulturellen Nutzungen hinaus wird die Turnhalle plus X zum Objekt der Identifikation, indem sie weithin sichtbar als Signal zeichenhaft über den Stadtteil hinauswirkt.
- Any
- 2008





