Studentenwohnhaus Sudermanplatz

Sudermanplatz, 50670 Köln, Germany
Fotografia © Dorothea Heiermann

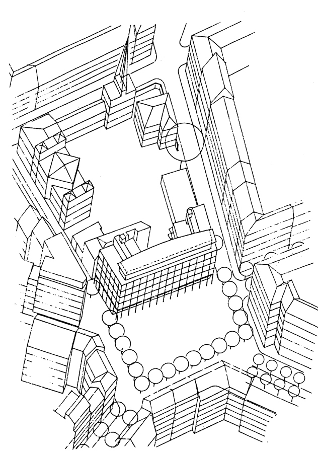
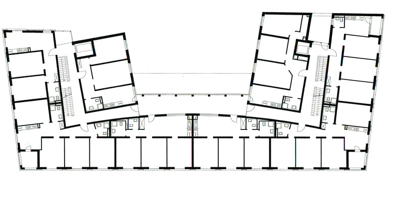
Der Sudermanplatz ist einer der typischen Sternplätze der Kölner Neustadt und einer der letzten großen innerstädtischen Plätze der Stübbenschen Neustadt, der nach der Kriegszerstörung als "Provisorium" liegengeblieben ist. Das Studentenwohnheim schließt diese Lücke und macht über eine Integration der Kompaktstation der GEW den Weg für eine großzügige Neugestaltung dieses wichtigen Platzes frei. Das Bauvorhaben mußte in dem sehr engen Kostenrahmen des sozialen Wohnungsbaus realisiert werden.

Über die Funktion als Sonnenschutz hinaus geben die Schiebeläden den Bewohnern die Möglichkeit sich in der reizvollen aber auch exponierten Lage eines innenstädtischen Marktplatzes abschirmen zu können, ohne den Kontakt zur Außenwelt völlig zu verlieren.

Fotografia © Dorothea Heiermann
Fotografia © Dorothea Heiermann
Fotografia © Dorothea Heiermann
Dibuix © Schaller/Theodor
Dibuix © Schaller/Theodor
Dibuix © Schaller/Thedor
Dibuix © Schaller/Theodor
Any
1998

Altres projectes per Schaller Architekten Stadtplaner BDA 

3-fach Sporthalle
Eppelheim, Germany
Erweiterung Realschule / Neubau Grundschule
Pulheim, Germany
Öffentlicher Raum neben der Marktgalerie
Bergisch Gladbach, Germany
Tianjin Zhangjiawo New Town Residential Project, 1. BA
Tianjin, China
Eisenbahnversicherungskasse, Büro und Wohnen
Köln, Germany