SHIKISM
SHIKISM
東京の都心から列車で約30分に位置する、埼玉県志木市駅から徒歩圏内の商業ストリートに面して建つ鉄骨造地上4階地下1階建て商業テナントビル。
敷地のある志木市は、江戸時代に新河岸川の舟運により河岸が商業地として栄え、現代としては、東武東上線の主要の駅として発達してきている。
川の流れ、緑、人との関わりの上に成立してきた志木の風景と新たに対話しながら志木のイムズ植え付けていくテナントビル建築とはどういうものであるかということを考えた。現代の商業テナントビルとしての社会的ニーズで最たるもののひとつといえば、利益の最大化の追求というものがある。このプロジェクトもそのニーズから外れてはいない。多様な価値を同時に存在させる商業テナントビルとはどういうものか。
建物のファサードは、建物全体としてカラーアルミ光輝材を包み込み、志木駅へ繋がる商店街に挿入している。商店街の部分として新たな時代の起点のきっかけとなるように街全体へ繋がっている。
前面のテラスは階によって大きさや形状が異なり、変化があるテラスがオーバーレイしている。上下階で抜けていたり、テラスがそのまま傾き登るように床形状から壁面形状になったり上下階での連続性も取り入れている。テラス盤面もアルミ光輝材を取り入れ、部屋内部、外部の人々の気配の映り込みが動くようになる。上下バルコニースラブ間に張ったワイヤー、ロッドを蔓性植物がはう。建物部分として新たなアイコニックな形としてファサードを展開し、カラーアルミ光輝材と呼応し合うことを意図している。
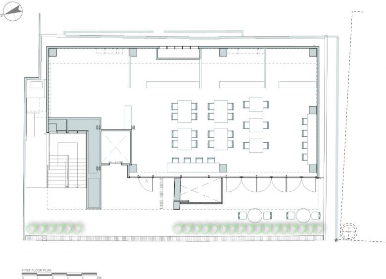
テナントスペースとしては、地下1階、1階はフードコート系の飲食店舗でいくつかの志木市近郊から選りすぐりのお店のアンテナショップ群、2階は、保育園、3階~4階はシェアオフィスが決まっている。
建築要素としてのテラス形状の工夫が各テナントスペースにもうまく呼応してくれるように光、緑、場を考えている。
プロデユーサー:ユープラン/ 國分学
設計監理:佐々木設計事務所 / 佐々木龍一
建築:佐々木龍一、Anna Kwapien、坂口源、小倉裕里子
構造設計:寺戸巽海構造計画工房
設備設計:いそいそ計画
グラフィック:YTRO DESIGN INSTITUTE
施工:協同建設
建築主:川島屋不動産 / 浪川賢治
延床面積: 771.00m2
竣工 : February 2020
受賞
Iconic Awards 2020, Winner (ドイツ)
German Design Award 2021, Special Mention (ドイツ)
The Plan Award 2021, Finalist (イタリア)
WAF 2021, Shortlist (国際)
- Any
- 2020















