Wohnhaus B12
Altusried-Binzen, Germany
Neubau eines Einfamilienhauses mit Garage und Nebengebäude in Altusried-Binzen
Leitidee und Gebäudekonzept
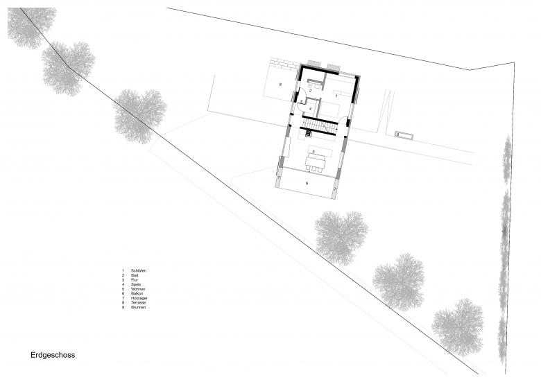
Das steile Hanggrundstück oberhalb der Kreisstraße zwischen Altusried und Kimratshofen wird über einen befestigenden Feldweg entlang der südlichen Grundstücksgrenze erschlossen. Die Ausrichtung des Wohngebäudes mit der Firstrichtung Nord-Süd basiert auf zwei wesentlichen Überlegungen:
Um den Lärmemissionen, die durch die Lage der Kreisstraße gegeben sind, entgegen zu wirken, erlaubt die Positionierung der Geschosstreppen quer zur Firstrichtung die Teilung des Gebäudes in eine laute Seite (Koch, Ess- und Wohnbereich) und eine leise Seite (Schlafbereiche).
Die großzügig verglaste Südfront mit dem großen Vordach und den vorgelagerten Balkonen ist so konzeptioniert, dass die optimale Ausnutzung der passiven Sonnenenergie im Winterfall ermöglicht wird und die Grundlage für ein minimiertes, autarkes, auf nachwachsenden Rohstoffen und erneuerbaren Energieträgern basierendes Energiekonzept gegeben ist.
Energiekonzept
Unsere Überlegungen zielten bewusst auf ein Low-Tech-Gebäude ab. Die Haustechnikkomponenten sollten einfach zu warten und zu bedienen sein und basieren auf der Ausnutzung passiver Sonnenenergie in Kombination mit der hochgedämmten Gebäudehülle und dem Betonkern als Speichermasse.
Die Wärmeerzeugung erfolgt in beiden Geschossen über handbefeuerte Stückholzofen in Wohnraum und Küche. Die Schlafbereiche bleiben Kaltbereiche.
Die Brauchwassererwärmung erfolgt mittels Frischwasserstation mit Wärmenutzung über eine Luft-Wasser-Wärmepumpe, deren Energiebedarf über die Photovoltaikanlage gedeckt ist.
Die Luft-Wasser-Wärmepumpe nutzt die erwärmte Raumluft über die Abluftzonen in den Nasszellen.
Eine Regenwasserzisterne ermöglicht neben der Nutzung als Gartenwasser auch die Grauwassernutzung für die Toilettenspülung.
Das Schmutzwasser wird über eine biologische Kleinkläranlage auf dem Grundstück entsorgt.
Die Eigennutzung der erzeugten Strommenge wird durch den Einsatz einer elektrischen Fußbodenheizung im Duschbereich und elektrischen Infrarotheizkörpern in den Bädern und ggf. den Schlafbereichen forciert.
Im Sommerfall ermöglicht eine natürliche Nachtspülung mit kühler Zuluft über eine definierte Öffnung im UG und der Öffnung des Dachfensters im OG die Abkühlung der massiven Bauteile im Treppenhausbereich.
Der energetische Standard entspricht dem Effizienzhaus 55.
Materialität
Das Gebäude wurde in Mischbauweise erstellt. Die erdberührten Bauteile wurden vor Ort betoniert, außen gedämmt und, wo sichtbar, verputzt. Alle anderen Wände des Wohngebäudes sind in konventioneller Holzständerbauweise mit Zellulosedämmung errichtet. Außenseitig sind die Ständer mit Weichfaserplatten überdämmt und mit einem hinterlüfteten Holzschild mit liegender Schalung aus Weißtanne versehen. Die innenseitige Beplankung der Ständer besteht aus OSB-Platten zur Aussteifung, auf die Putzträger aus Gipsfaserplatten und Lehmputz aufgebracht wurden.
Das Dach wurde als klassischer Pfettendachstuhl ausgeführt und erhielt eine farblich zu den PV-Modulen passende Blechdeckung. Die Sparrenlage wurde außenseitig mit Holzweichfaser, hinterlüfteter Schalung und Blecheindeckung versehen; raumseitig wurden die Sparren mit OSB- und Holzwolle-Leichtbauplatten bekleidet. Treppenhauswände, Treppe und Decke über UG wurden in Betonbauweise hergestellt und tragen zur Aussteifung des Gebäudes sowie der Speicherung innerer und solarer Gewinne bei.
Der auskragende Teil des Gebäudes bildet den überdachten Zugangsbereich und bietet Raum für einen zusätzlichen Besucherstellplatz sowie für das Holzlager. Die Lastabtragung erfolgt über die auf das Untergeschoss auflagernde Betondecke und drei Stahlstützen.
Holzkonstruktion, Holzschild und Bodenbeläge im Haus wurden aus heimischen Hölzern hergestellt, um die Wertschöpfungsketten zu stützen und so einen Beitrag zur Nachhaltigkeit zu leisten.
Im Großen und Ganzen wurden die verwendeten Baumaterialien (z.B. Betonwände, Estrich, Holzdecken und -böden, Holzfassade, Lehmputz) roh belassen und nicht mit weiteren Deckschichten (Putz, Farbe etc.) bekleidet.
Beauftragte Leistung: LPH 1-8 HOAI
Planung: ab 12/2016
Bauzeit: Abbruch 11/2017, Neubau 06/2018 bis 04/2019
Projektgröße: BRI: 1077 m³ | BGF: 253 m² | WF: 136 m²
Energiestandard: KfW-Effizienzhaus 55 (EnEV 2016)
Primärenergiebedarf: 21,26 kWh/m²a
Tragwerksplanung: Ingenieurbüro Lämmle, Wiggensbach
HLS-Planung: Güttinger Ingenieure, Kempten
- Architects
- f64 Architekten und Stadtplaner GmbH
- Any
- 2019
- Client
- privat
Projectes relacionats
Revista
-
-
-
-
Un despatx madrileny signa un visionari catalitzador urbà en West Palm Beach
Andrea Pala | 29.11.2018 -
L'arquitectura de Francis Keré en escena en el Museu ICO de Madrid
Andrea Pala | 28.10.2018














