Kop Dakpark
Rotterdam, Netherlands
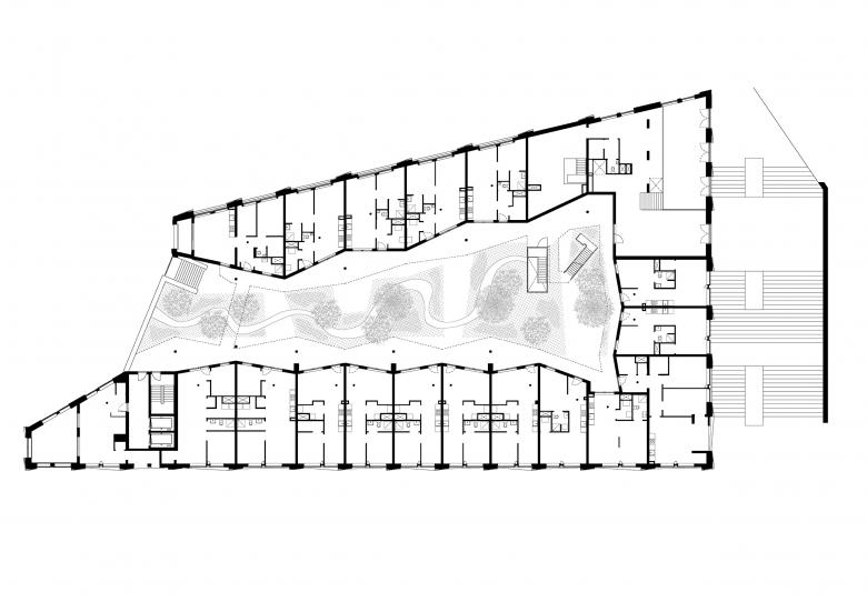
Woonstad Rotterdam está desarrollando un nuevo edificio residencial en el distrito de Nieuw-Mathenesse, en el límite de Bospolder-Tussendijken, Spangen, Het Witte Dorp y Oud-Mathenesse. El edificio albergará 154 viviendas, de las cuales 65 son sociales y 89 de alquiler medio, y contará con 1.000 m² de espacio comercial y aparcamientos. Con una superficie total de 112.850 m² residenciales y 650 m² comerciales, el proyecto supone una aportación significativa al barrio, ofreciendo hogares de alta calidad, asequibles y adaptados a todas las edades.
Ubicado en la cabecera del Dakpark, el edificio aspira a convertirse en un ícono verde que apoye la biodiversidad local y mejore la flora y fauna. El diseño, realizado por el estudio barcelonés H3O en colaboración con la firma holandesa INBO, fue el ganador del concurso Europan 2019 para jóvenes arquitectos europeos. Tras la finalización del edificio, prevista para finales de 2026, el municipio de Róterdam desarrollará también los espacios exteriores circundantes, enriqueciendo el entorno urbano. El proyecto, encargado por Woonstad Rotterdam con un presupuesto total de 28.000.000 € (IVA incluido), contribuye a abordar la crisis de vivienda en Delfshaven, ofreciendo una combinación de viviendas sociales y de alquiler medio que permite a los mayores de los barrios adyacentes trasladarse a residencias más adecuadas.
- Architects
- h3o architects
- Any
- 2021
- Client
- Woonstad Rotterdam
- Equip
- Miquel Ruiz Planella, Joan Gener González, Adrià Orriols Camps, Ramon Illan Salas, Marcel Heras Toledo, Ditė Mickevičiūtė, Damien Troilo, Elisa Gandolfi, INBO
Projectes relacionats
Revista
-
-
-
-
Un despatx madrileny signa un visionari catalitzador urbà en West Palm Beach
Andrea Pala | 29.11.2018 -
L'arquitectura de Francis Keré en escena en el Museu ICO de Madrid
Andrea Pala | 28.10.2018














