Casa VM
Jalisco, Mexico
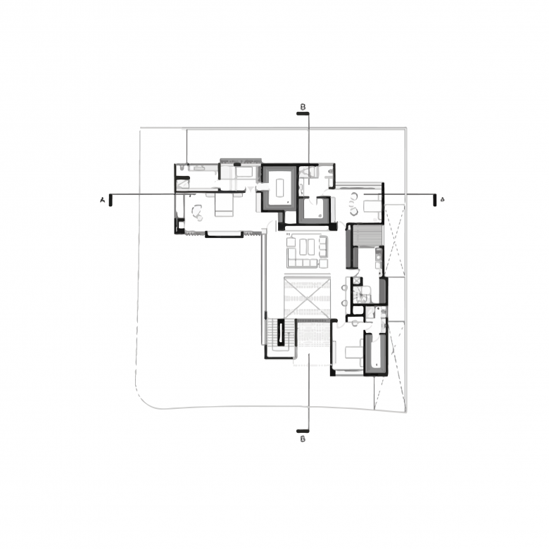
El concepto de la casa VM es invertir el esquema tradicional de jardín posterior, con fachada frontal, para generar una volumetría donde el jardín permanezca al límite de las colindancias frontales y abrazadas por los volúmenes que delimitan las servidumbres posteriores. La casa se desarrolla sobre los bordes de las servidumbres laterales y posteriores en forma de “L” para aprovechar la esquina del terreno como un jardín frontal que da continuidad a las áreas verdes del fraccionamiento.
- Architects
- divece arquitectos
- Any
- 2019
Projectes relacionats
Revista
-
-
-
-
Un despatx madrileny signa un visionari catalitzador urbà en West Palm Beach
Andrea Pala | 29.11.2018 -
L'arquitectura de Francis Keré en escena en el Museu ICO de Madrid
Andrea Pala | 28.10.2018















