200 Eleventh Avenue
New York, NY, USA
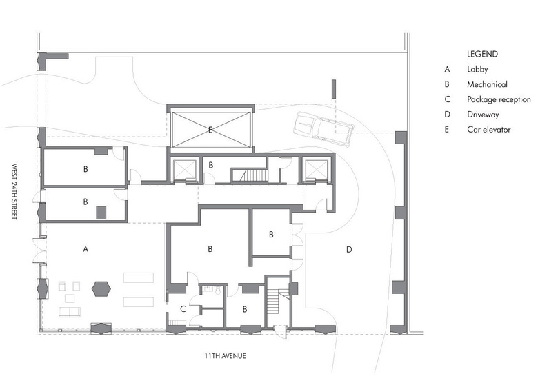
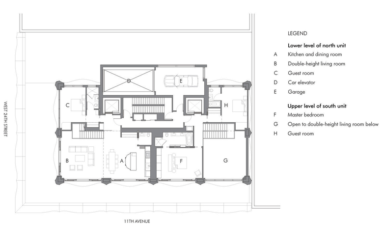
This residential building is located in New York’s West Chelsea neighborhood, a former industrial zone and home to many art galleries. The building makes an iconic contribution to the neighborhood, through a contemporary design that echoes tradition. The base is designed to connect the building to its surroundings by reflecting the low-rise scale and through a material palette (terracotta cladding and blackened steel window frames) that matches the masonry façades and industrial details of neighboring buildings. Terracotta, traditionally used as architectural ornament in New York during the 19th century, is applied to the base but with a contemporary expression. Above the plinth, the tower energizes the neighborhood with a new architectural expression: the metallic sheen and curvilinear forms of its custom-fabricated stainless steel rainscreen. The 16 units are configured as duplexes—a strategy which increases building height in order to maximize river views. Inside, a double-height living space gives each unit the feel of a private home. Interiors are modern, but also recall the tradition of prewar buildings with tall ceilings, graceful proportions, and casement windows.
- Architects
- Selldorf Architects
- Any
- 2010
Projectes relacionats
Revista
-
-
-
-
Un despatx madrileny signa un visionari catalitzador urbà en West Palm Beach
Andrea Pala | 29.11.2018 -
L'arquitectura de Francis Keré en escena en el Museu ICO de Madrid
Andrea Pala | 28.10.2018














