Villa Parque
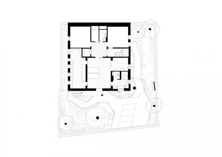
Villa Parque es la rehabilitación de una casa unifamiliar modernista de principios del siglo XX en el barrio de Gràcia, Barcelona, finalizada en 2024 para un cliente privado. El proyecto, con una superficie total de 240 m² más un jardín de 100 m² y un presupuesto de 450.000 € + IVA, respeta y potencia el patrimonio arquitectónico del edificio al tiempo que lo adapta a las necesidades contemporáneas.
La intervención prioriza la apertura de la vivienda hacia el jardín y el parque adyacente, creando una relación continua entre los espacios interiores y exteriores. Se han recuperado y preservado elementos históricos clave, como la estructura original del techo y los suelos de baldosa hidráulica, reforzando la identidad de la casa. Al mismo tiempo, se han realizado importantes refuerzos estructurales que permiten reducir los tabiques interiores y generar un espacio más luminoso y flexible. Desde una perspectiva de sostenibilidad, toda la vivienda ha sido aislada térmicamente, mejorando la eficiencia energética y el confort, garantizando que se preserve el espíritu original del edificio mientras se satisfacen los requerimientos actuales de habitabilidad y sostenibilidad
- Any
- 2025
- Project Status
- Construït
- Client
- privado
- Equip
- Miquel Ruiz Planella, Joan Gener González, Adrià Orriols Camps, Marcel Heras Toledo, Ditė Mickevičiūtė, damien troilo













































