ABB
Ziel: Die bestehenden kleinzelligen Büroeinheiten im ersten Obergeschoss des Gebäudes 1906 an der Bruggerstrasse in Baden stammen aus den späten 80'iger Jahren. Sie entsprechen nicht mehr den differenzierten Anforderungen wie sie heute an attraktive Arbeitsplätze gestellt werden.
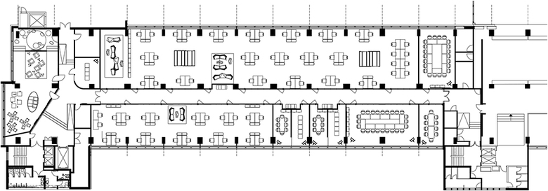
Problemstellung: Die bestehenden Büros sind ohne Zonierung durchgerastert, es fehlen inspirierende Raumbezüge und Raumqualitäten welche einerseits die Kommunikation unterstützen und andererseits wiederum Rückzugsmöglichkeiten für konzentriertes Arbeiten bieten. Die Pausenbereiche sind wenig einladend, sie bieten kaum Gelegenheit für informelle Kontakte und kreativen Gedankenaustausch.
fsp: Mit der Erstellung des Pilotprojektes im Rahmen von Workplace 2020 entstehen im ersten Obergeschoss des Gebäudes 1906 zukunftsweisende und moderne Arbeitsplätze, entsprechend den neuesten Erkenntnissen für kreative Arbeitswelten. Der Open Space der Büroflächen wird mit Focusboxen und Bereiche für Informal Meetings im Cosy Style zoniert. Die Trennwände zum Korridor sind je nach Nutzung mehr oder weniger transparent und der Break Room bietet differente Zonen zum Relaxen und Arbeiten.
- Any
- 2017
- Project Status
- Construït









