Schulzentrum Waltenhofen
Umbau und Generalsanierung Grund- und Mittelschule Waltenhofen
Der Bestand
Der bestehende Schulkomplex der Grund- und Mittelschule Waltenhofen wurde 1968 von Werner Fauser, München nach gewonnenem Wettbewerb errichtet.
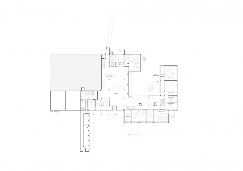
„Die senkrecht in den Hang gestellten Klassentrakte – aus der Topographie, der Lage zur Sonne und abschnittsweisem Bauen entstanden – sind auf der unteren Ebene durch eine Pausenhalle und darüber durch den Pausenhof verbunden. Um die Pausenhalle liegen alle Fachklassen, darüber auskragend in zwei Geschossen die Normalklassen. Materialbeschränkung im Äußeren auf Waschbetonflächen und das Holz für die Fenster. Die Innenwände Sichtbeton und Sichtmauerwerk, Holz für Böden und Decken.“
Im Gebäude findet sich die künstlerische Gestaltung durch Manfred Mayerle. Der heute noch aktive Künstler gestaltete sämtliche Innentüren und viele Wandflächen stark farbig und von identitätsstiftender Prägnanz. In der Aula befindet sich an der Rückwand ein plastisches Relief aus gefasstem Beton. Die Treppenhauswände, Heizkörper und Innentüren sind in strahlenden Farben mit geometrischen Formen gestaltet. Obwohl das Gebäude nicht in der Denkmalliste eingetragen ist, geht die vorliegende Planung sehr bewusst mit diesem künstlerischen Erbe um. Der Umgang mit der signalhaften Ausmalung aller Verkehrsflächen und dem farblich gefassten Betonrelief in der Eingangshalle wird mit dem Urheber Atelier Mayerle abgestimmt.
Umbau und Sanierung
Ursprünglich für 850 Schüler geplant, wird die Schule derzeit von ca. 250 Schülern genutzt. Zusätzlich wird eine offene Nachmittagsbetreuung angeboten. Neue Anforderungen an Unterrichtsräume und neue Schulkonzepte führten zu einer Neuverteilung der Nutzungen. Der erst in den 1980er Jahren hinzugefügte „Nordbau“ wurde abgebrochen.
Das bestehende Schulgebäude wurde dem aktuellen Bedarf angepasst und innen grundlegend saniert. Anforderungen an zeitgemäße Unterrichtsräume und neue Schulkonzepte konnten durch eine Neuverteilung der Nutzungen realisiert werden. Große Teile der versiegelten Flächen wurden begrünt und die zentrale Aula wurde mit Oberlichtern und einer Öffnung der Fassade zu einem hellen und lebendigen Ort.
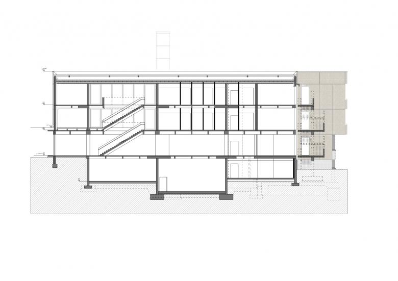
Die energetische Sanierung nahm Rücksicht auf die Substanz des Gebäudes und versuchte seine Qualitäten herauszuarbeiten. Waschbeton außen und teilweise gefasste Sichtbetonfläche innen verlangten einen differenzierten Umgang mit Wärmedämmung. Grundsätzlich wurden Außenwände von innen und mit einer neuen Installationsebene gedämmt. Ausnahme bildeten Flächen mit künstlerischer Gestaltung auf Sichtbeton – vor allem in den Treppenhäusern. Solche Flächen wurden nicht gedämmt. Sämtliche Fenster und Außentüren wurden erneuert. Sämtliche Klassenraumtüren wurden ausgetauscht, wobei darauf geachtet wurde, dass die Gestaltung und das damalige Farbkonzept übernommen wurden. Beton- und Kalksandsteinwände wurden erhalten und gesäubert. Mit Ausnahme der Aula blieben die bestehenden Eichenparkettböden im gesamten Gebäude erhalten.
Die beiden auskragenden Geschosse behielten dabei ihre ursprüngliche Fassadengliederung als Fensterbänder mit zurückhaltender Farbgestaltung. Die Fensterbänder wurden durch die notwendigen Lüftungselemente neu rhythmisiert. Sockel- und Untergeschoss erfuhren wesentliche Veränderungen, wurden von den Obergeschossen abgesetzt und bekamen neue, hoch wärmegedämmte Fassaden mit einer differenzierten, zurückhaltenden Plastizität. Daraus entstand eine horizontale, schwebende Betonung der Obergeschosse. Die über vier Geschosse reichende Höhe der Süd- und Westfassade wird dadurch näher an den Maßstab der Umgebung herangeführt. Der Rückbau der Betonlamellen und damit verbunden das großflächige Öffnen der Aula-Fassade sowie der Abbruch der „zweiten“, äußeren Fassade am Haupteingang verbessert wesentlich die Belichtungsverhältnisse sowie den Aufenthaltswert in der Aula und schafft eine Sichtverbindung zu den anderen Bauteilen und Außenanlagen.
Aufgrund der Forderungen aus dem Brandschutz und der Barrierefreiheit wurden weitere bauliche Eingriffe notwendig. Dies waren vor allem die Anordnung von Aufzügen an oder vor den Fassaden sowie die Errichtung von Brandschutzabschlüssen.
Wettbewerb: Zuschlag nach VOF-Verfahren
Beauftragte Leistung: Objektplanung LPH 1-9 HOAI
Planung: ab Juli 2014
Bauzeit: 08/2016 bis 09/2018, Umbau bei laufendem Schulbetrieb
Projektgröße: BGF: 6.868 m2 | BRI: 25.050 m3 | Nutzfläche: 5.220 m2
Baukosten: KG 300+400: 9,0 Mio € brutto
Energiestandard: Effizienzhaus100
Tragwerksplanung: Dr. Schütz Ingenieure, Kempten
Brandschutzplanung: Ingenieurbüro Anwander, Sulzberg
HLS-Planung: Ingenieurbüro IBDG, Waltenhofen
Elektroanlagenplanung: Elektroplaung Wohlfahrt EPW, Börwang
EnEV und Bauphysik: Ingenieurbüro Herz und Lang, Weitnau
Künstlerische Beratung: Atelier Manfred Mayerle, München
Freianlagen: Wilhelm Müller Landschaftsarchitekt, Kempten
- Any
- 2018
- Client
- Gemeinde Waltenhofen










