Zentrumsentwicklung Kleinwabern
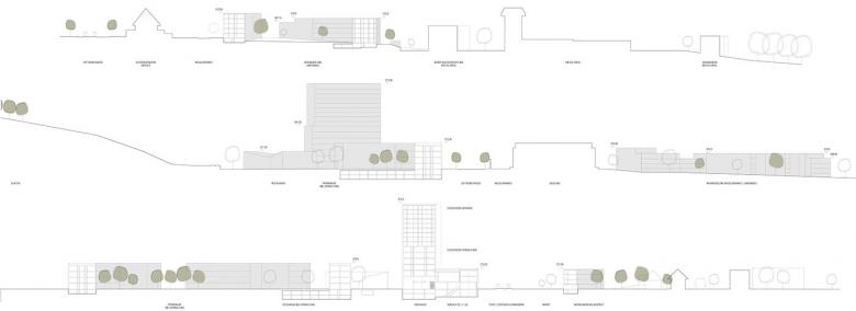
Städtebauliche Planung Zentrumsentwicklung / Am Fusse des Gurten, des Berner Hausbergs im Süden der Stadt, bedingt ein geplanter Knoten aus S-Bahn, Tram und Bus 20 Hektar Siedlungsrand neu zu ordnen. Um die betreffenden Teilgebiete hier, entlang der Ausfallachse Seftigenstrasse, mit den geforderten 2'000 Büroarbeitsplätzen, 300 Wohnungen, Einzelhandelsflächen und Infrastruktur stadträumlich zu "befestigen", werden sie von ihren jeweiligen Rändern her besetzt:
Das Baudenkmal Balsigergut mit seinen alten Bäumen wird gegen die verstädternde Umgebung hin eingefasst mit einer abknickenden Zeile aus Wohnungen. Nordöstlich davon, am Nesslerenweg, zieht die nach Südwesten hin geöffnete Grossform der neuen Wohnungsbauten die Weite der Landschaft als Parkraum bis zum bestehenden EFH-Gebiet Lindenweg im Norden heran.
Stadtauswärts ist das grosse, bislang unbebaute Teilgebiet der Balsigermatte an seinen Längsseiten von Bahntrassee und Ausfallstrasse begrenzt. Hier konzentriert sich der Grossteil der geforderten Baumassen in definierten Etappen. Die bereits geplante, neue Tramschlaufe wird unmittelbar südlich des umbauten Balsigerguts einen Platzraum zum S-Bahnhof abstecken. In seiner Mitte weist ein Hochhaus den Verkehrsknoten als künftiges Zentrum von Kleinwabern aus.
Die neuen Sportanlagen sind ganz im Süden der Balsigermatte vorgesehen , in unmittelbarer Nähe zur offenen Landschaft. Das hier in der Raumplanung ausgewiesene "Grüne Band" rund um Bern definiert den Abschluss des Stadtkörpers. 4 Baufelder auf der Balsigermatte – zwischen Tramschlaufe im Norden und Spielfeldern im Süden – befestigen 4 Raumkanten gegen die offene Umgebung. Der zwischen diesen polygonal verzogenen Baufeldern verbleibende, S-förmige Binnenraum erschliesst als befestigte, öffentliche Fläche alle Bauabschnitte. Auftakt und Abschluss dieser neuen Promenade sind ausgezeichnet mit Pavillonbauten, die für das Areal zentrale Funktionen aufnehmen.
- Any
- 2014 (Wettbewerb, offen, 1. Rang / 1. Preis)
- Client
- Wettbewerb: Bundesamt für Bauten und Logistik Bern (BBL), Weiterbearbeitung: Gemeinde Köniz Planungsabteilung
- Equip
- Büning-Pfaue Kartmann Architekten, Grand Paysage Landschaftsarchitektur






