Zentrierung und Strukturbereinigung medius Klinik
Um den gestiegenen Patientenzahlen und der medizinischen Entwicklung gerecht zu werden, wurde es erforderlich die medius KLNIK am Standort Nürtingen baulich zu erweitern.
Hierzu wurde die Gesamtzielplanung der Klinik in ein Masterplankonzept umge-
setzt, um die funktionalen Anforderungen in einem architektonisch abgestimmten
Gesamtkonzept umzusetzen.
Die Ausfühung erfolgte in 2 Förderanträgen.
Alle Maßnahmen wurden im laufenden Klinikbetrieb umgesetzt. Die Ausführung er-
folgte für den 2. Förderantrag als Generalplanerleistung für die arabzadeh+schnei-
der planungsgesellschaft erbracht.
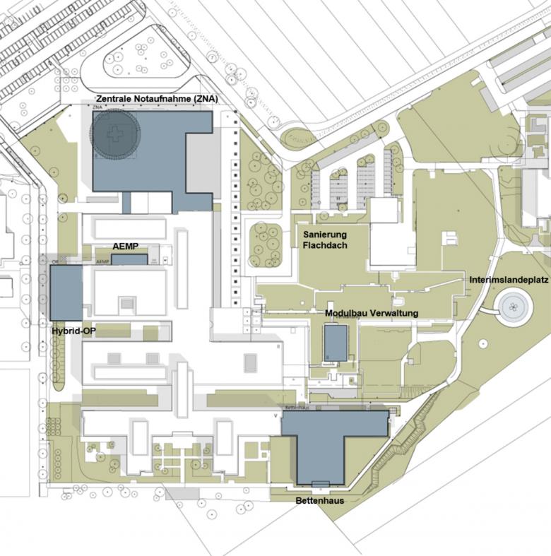
Zentrale Notaufnahme (ZNA) FA 1B
Fertigstellung 01/ 2025
AEMP FA 1A
Fertigstellung 11/ 2021
Hybrid-OP FA 1A
Fertigstellung 12/ 2020
Bettenhaus FA 1A
Fertigstellung 12/ 2021
Modulbau Verwaltung, Interimslandeplatz und Sanierung Flachdach
FA 1B
- Any
- 2025
- Project Status
- Construït
- Client
- medius KLINIKEN gGmbh Charlottenstr. 10 73230 Kirchheim unter Teck






