Spreewald Therme
Neubau einer Thermenanlage mit Sauna- und Wellnessbereich.
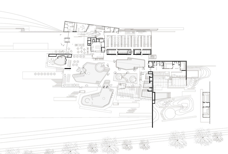
Prägendes Element der Kulturlandschaft Spreewald ist ein weit verzweigtes Netz aus Kanälen, so genannte Fließe, die zu beiden Seiten dicht mit hohen Bäumen bewachsen sind. Auch das Grundstück für die Spreewald Therme außerhalb von Burg wird durch „grüne Wände“ räumlich begrenzt. Die Bade-, Sauna- und Wellnesslandschaft greift die prägenden Elemente der Kulturlandschaft auf. Mit seinem spezifischen Erscheinungsbild bezieht sich das Gebäude ausschließlich auf den Ort Burg im Spreewald und erhält dadurch unverwechselbaren Charakter. Klare Formen und ausgewählte Materialien bestimmen die Komposition des Raumgefüges. Material- und Farbwechsel setzen besondere Akzente im Innenraum und verleihen der Therme eine warme Atmosphäre, die durch den Einsatz von Holz bei Konstruktionen und Verkleidung noch verstärkt wird. Der Bezug zum Ort wird zudem durch eine sensible Materialauswahl hergestellt. Beispielsweise unterstreicht die Verwendung von ortstypischen Materialien wie Reet, Holz und Ziegelsteinen die architektonische Verbindung der Therme mit der Region Spreewald.
Bauherr
Spreewald Therme GmbH
Architekten
Lale Gündog, Rike Hannes, Volker Zepter
Bauzeit
03/2004 bis 09/2005
Baukosten
ca. 10,5 Mio. Euro
Bruttogrundfläche
ca. 7.935 m²
Bruttorauminhalt
ca. 34.000 m³
Leistungsphase
1 bis 8
Auszeichnung
IOC/IAKS AWARD 2007
- Any
- 2005
- Project Status
- Construït











