Sanierung Sportzentrum Leonberg
Sanierung eines Hallenbades mit Sporthallen und Sauna.
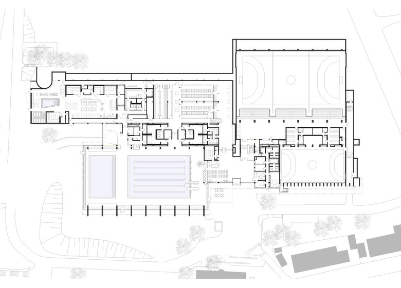
Ziel der Sanierung des Sportzentrums war es, die Attraktivität des Bades und der zwei Sporthallen zu steigern und den Wohlfühlfaktor zu erhöhen sowie das Gebäude aus den 70er Jahren technisch auf den aktuellen Stand zu bringen. Die Sanierung war in zwei Bauabschnitte unterteilt. Im ersten Schritt wurden die zwei Sporthallen sowie die Badehalle mit Nebenräumen und Technik saniert sowie die Außenanlagen teilweise neu gestaltet. Der zweite Bauabschnitt umfasste die Umstrukturierung und komplette Sanierung des Saunabereichs mit Baumhaus-Sauna und Saunagarten. Für die energetische Optimierung wurden sämtliche Glasfassaden im Gebäude ausgetauscht. Die charakteristische Dreiecksform der Badehalle prägt nach wie vor den Gebäudekomplex. Ziel war es, das Sportzentrum mit geringfügigen baulichen Eingriffen hinsichtlich der funktionalen Anforderungen und atmosphärischen Wirkung maximal zu verbessern. Dafür wurden neue Raumaufteilungen geschaffen und die Wegeführung im Foyer und den Nebenräumen optimiert. Die zeitgemäße Material- und Farbgestaltung verleiht dem Innenraum eine eigene Identität und sorgt im gesamten Gebäude für ein angenehmes Raumgefühl.
- Any
- 2016
- Project Status
- Construït
- Client
- Stadt Leonberg
- Bauzeit
- In zwei Bauabschnitten 12/2012 bis 01/2014 bzw. 09/2016
- Baukosten
- ca. 10,8 Mio. Euro
- Bruttogrundfläche
- ca. 11.110 m²
- Bruttorauminhalt
- ca. 54.525 m³
- Leistungsphase
- 1 bis 9
- Projektteam
- Swantje Hanussek, Jelena Koneva, Nikola Morelli
- Projektleitung
- Martina Henke, Christian Voermann
- Auszeichnungen
- Pool Vision Award 2016, 1. Preis "renovated pools" Wood Wool Award 2015
















