Hallenbad Neutraubling
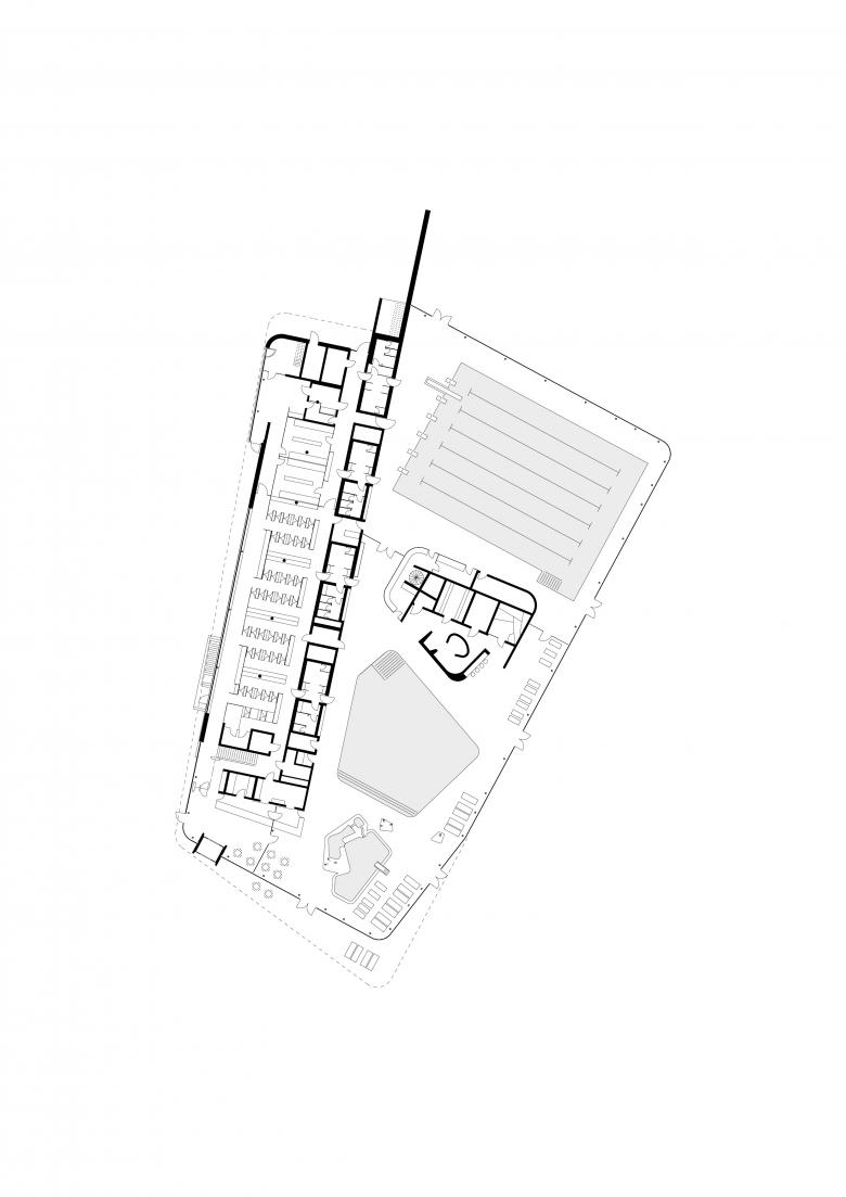
Das Hallenbad in Neutraubling zeigt, we Schul- und Vereinsbäder auch für Familien, Freizeitsportler und Erholungssuchende attraktiv werden. Zukünftige Badegäste erwartet ein Sportschwimmbecken, ein Freizeitbecken sowie ein Kleinkindbereich. Der Clou dabei: Zwischen den Becken befindet sich eine Wellnesszone mit Textilsauna und Dampfbad. Diese trennt die unterschiedlichen Bereiche klar voneinander und steigert zugleich den Erholungswert des Bades.
Ein Mix aus klarer Formensprache und starken Kontrasten prägt das Hallenbad in Neutraubling. Von außen ist das Gebäude ruhig und geschmeidig gestaltet und gliedert sich in zwei flächige Volumen. Diese unterscheiden sich zum einen in ihrer Nutzung, zum anderen in der Raumhöhe. Der niedrige Baukörper nimmt Foyer und Umkleiden auf, die Badehalle ist den Anforderungen entsprechend höher gestaltet. Ein großzügiger Vorplatz markiert den Eingangsbereich und leitet die Besucher ins Gebäude. Parallel zur Straße angeordnet, bildet der Umkleideriegel einen schützenden Rücken zum gegenüberliegenden Friedhof und den Wohngebieten im Westen. Foyer und Umkleidetrakt schieben sich mit reduzierter Höhe in die unmittelbar anschließende, weiträumige Badehalle. Diese öffnet sich mit Sport-, Freizeit- und Wellnessbereich sowie Gastronomie großflächig nach Süden bzw. Südosten zum Außenraum.
Im Zentrum des Gebäudes, zwischen Freizeit- und Sportbereich, befindet sich die Wellnesszone mit Dampfbädern, Erlebnisduschen und Ruheflächen. Verglaste Wände zwischen den unterschiedlichen Zonen ermöglichen eine gute Orientierung und erhalten das weitläufige Raumgefühl in der Badehalle. Im Innenraum verleihen freundliche, naturbelassene und robuste Materialien, die dauerhaft und pflegeleicht sind, dem neuen Hallenbad eine hohe Aufenthaltsqualität und Wohlfühlatmosphäre.
- Any
- 2025
- Project Status
- Construït
- Client
- Stadt Neutraubling
- Equip
- Martina Pfeiffer, Axel Hohensteiner (Projektleitung), Zachary Kimberling (Projektleitung), Alena Zgorskaya, Matthias Zwicker (Bauleitung)
- Bauleitung
- Prokopetz Architekten + Ingenieure GmbH
- Landschaftsplanung
- Planstatt Senner
- Tragwerksplanung
- Schneck Schaal Braun Ingenieurgesellschaft Bauen mbH
- Bauphysik
- Kurz und Fischer GmbH
- HLS
- Kannewischer Ingenieurgesellschaft mbH
- ELT
- UNI-TEC Projekt GmbH














