Wohnhaus in Bern
Bern, Switzerland
Photo © Dominique Uldry
Photo © Dominique Uldry
Photo © Dominique Uldry
Photo © Dominique Uldry
Photo © Dominique Uldry
Photo © Dominique Uldry
Photo © Dominique Uldry
Photo © Dominique Uldry
Photo © Dominique Uldry
Photo © Dominique Uldry
Photo © Dominique Uldry
Photo © Dominique Uldry
Photo © Dominique Uldry
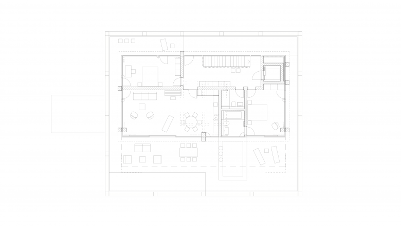
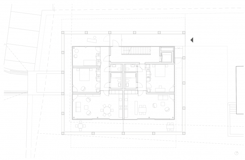
Drawing © DJA
Drawing © DJA
Drawing © DJA
Drawing © DJA
Photo © Zaborowsky
Photo © Zaborowsky
Photo © Zaborowsky
Photo © Zaborowsky
Photo © DJA
Photo © DJA
-
Year
-
2024
-
Auftraggeber
-
Lichtsteiner Foundation
-
Landschaftsarchitektur
-
Antòn Landschaft
-
Bauingenieur
-
Schnetzer Puskas Ingenieure
-
Termine
-
Planung und Ausführung 2020 - 2024
-
Aufgabe
-
Neubau eines Wohnhauses auf der Parzelle einer 1925 von Architekt Max Hofmann erstellten Villa. Die Villa wurde im städtischen Inventar als erhaltenswert eingestuft.
-
Programm
-
Wohnhaus mit 5 Mietwohnungen. Die geräumige Gartenanlage bleibt als Ganzes zur gemeinsamen Nutzung durch die Bewohner der Villa und des Neubaus erhalten.
Psychiatrische Universitätsklinik Rheinau
Primarschule Riethüsli St.Gallen
Schul- und Sportzentrum Champagne