Kinderspital St.Gallen
© maaars
© maaars
© dja
© dja
© dja
-
Year
-
2010
-
Auftraggeber
-
Stiftung Ostschweizer Kinderspital
-
Spitalbau
-
Thomas Hardegger
-
Bauingenieur
-
AF Toscano
-
Haustechnik
-
Amstein + Walthert
-
Wettbewerb
-
2010, 2. Preis
-
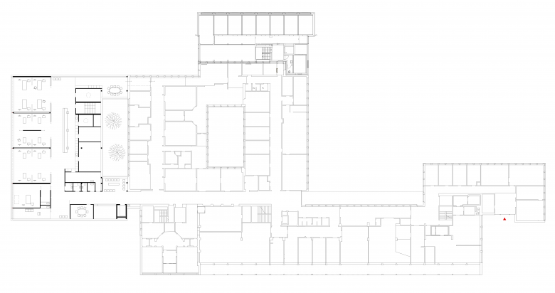
Aufgabe
-
Erweiterung des Kinderspitals für die Intensivpflegestation mit 5 1 bis 4-Bett-Zimmern, Empfang, Büros, Besprechungsräumen, Aufenthalt, Notfallzufahrt
Psychiatrische Universitätsklinik Rheinau
Primarschule Riethüsli St.Gallen
Schul- und Sportzentrum Champagne