Dorf- und Bildungszentrum Wollerau
Wollerau, Switzerland
Visualization © atelier brunecky
Visualization © atelier brunecky
Visualization © atelier brunecky
Visualization © atelier brunecky
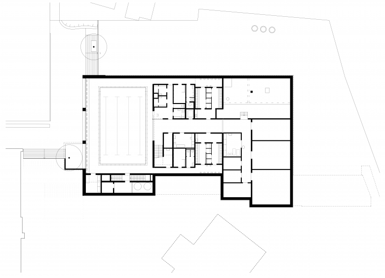
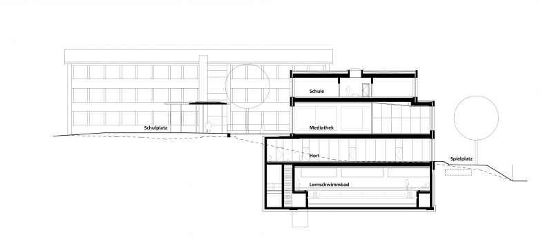
Drawing © dja
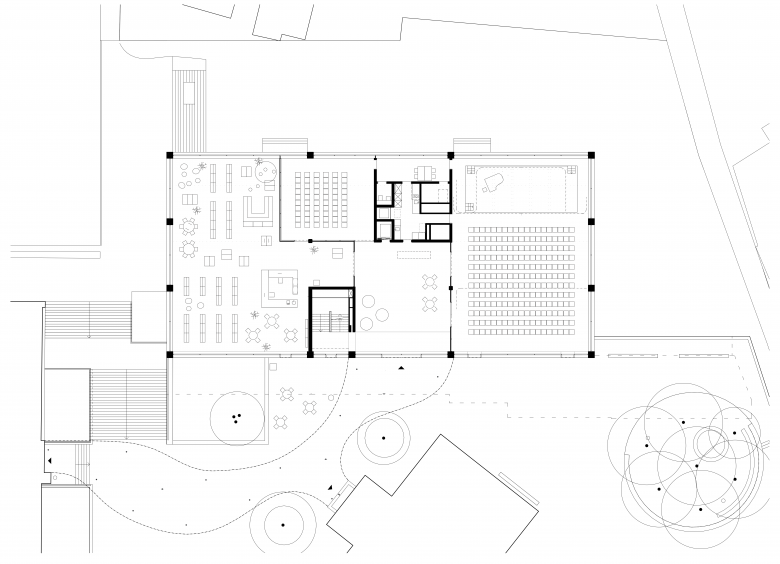
Drawing © dja
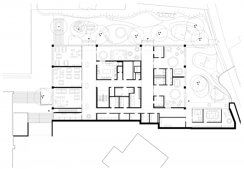
Drawing © dja
Drawing © dja
Drawing © dja
Drawing © dja
Photo © Zaborowsky
Photo © Zaborowsky
-
Year
-
2026
-
Auftraggeber
-
Gemeinde Wollerau, Schwyz
-
Landschaftsarchitektur
-
Antòn Landschaft
-
Baumanagement
-
BGS & Partner Architekten
-
Wettbewerb
-
2015, 1. Preis
-
Aufgabe
-
Neuformulierung des Dorfzentrums und Neubau als Erweiterung der bestehenden Anlage mit zwei Primarschulhäusern.
-
Programm
-
Dorf- und Pausenplatz. Aula, Saal, Bibliothek/Mediathek, 5 Klassenzimmer, Gruppenräume, Schulverwaltung, Hort, Krippe, Schulschwimmanlage. Minergiestandard.
Psychiatrische Universitätsklinik Rheinau
Primarschule Riethüsli St.Gallen
Schul- und Sportzentrum Champagne