Alterssiedlung Feldblume Zürich

© farblabor
© farblabor
© farblabor
© farblabor
© farblabor
© farblabor
© farblabor
© farblabor
© dja
© dja
© dja
Year
2010
Auftraggeber
Stiftung Alterswohnungen SAW
Landschaftsarchitektur
Studio Vulkan
Baumanagement
Bosshard und Partner Architekturbüro
Wettbewerb
2007, 1. Preis
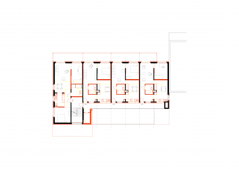
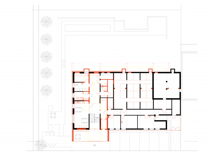
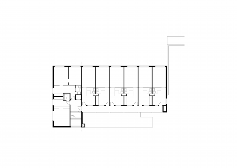
Aufgabe
Gesamtsanierung der Alterssiedlung aus den siebziger Jahren mit Wohnungzusammenlegungen. Neue Gemeinschaftsbereiche. Balkone.
Programm
20 behindertengerechte 2.5 und 3.5 Zimmerwohnungen, Gemeinschafts- und Spitexraum, Wohlfühlbad, Hauswart-Werkstatt. Umsetzung behördlicher Auflagen: Gebäudehülle, Asbestsanierung, Erdbebensicherheit, Brandschutz, Hindernisfreiheit.

Other Projects by Derendinger Jaillard Architekten 

Psychiatrische Universitätsklinik Rheinau
Haus Eber Zürich
Primarschule Riethüsli St.Gallen
Schul- und Sportzentrum Champagne
Einfamilienhaus in Bern