RWTH Aachen University Renovation of the 1st mechanical engineering building
RWTH Aachen University's 1st Mechanical Engineering Building was constructed in 1964 as a high-rise building in the inner-city ring road. The Faculty of Mechanical Engineering at
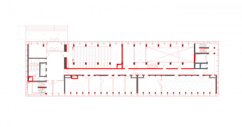
RWTH Aachen uses office and seminar rooms as well as workshops and laboratories in the building.
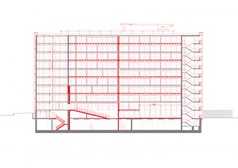
The existing building was gutted down to the shell structure. The remaining load-bearing structure was upgraded both statically and in terms of fire protection. A new element façade envelops the building.
The new interior fit-out was designed specifically for use as an office and seminar building as well as a lecture hall and workshops for the chairs of RWTH Aachen University. Further institutes from other buildings were integrated into the high-rise building in accordance with the university location and development concept.
As part of a feasibility study, SSP AG has developed a core refurbishment concept that focuses not only on optimizing the functionality of the usable areas and operational processes, but also on restoring a representative appearance. Maximum flexibility of use and optimized energy efficiency round off the sustainable building concept.
The carefully detailed element façade is characterized by a stringent horizontal structure during the day and thus refers to the original appearance. At night, the color-accentuated stairwells shine through the translucent façade and correspond with the urban space.
A delicate, filigree steel canopy on three chrome-plated supports extends over the entrance area and realigns the refurbished high-rise building on the first floor.
The refurbished collective building contributes to the future viability of this inner-city location of RWTH Aachen University through high energy savings (insulation of the building envelope, highly efficient energy recovery), a modular floor plan design and flexible use.
During the refurbishment, key requirements were implemented in accordance with the Sustainable Building Rating System (BNB) for silver certification.
- Year
- 2020



















