Between Tracks & Road

Korbach, Germany
Photo © Deimel+Wittmar

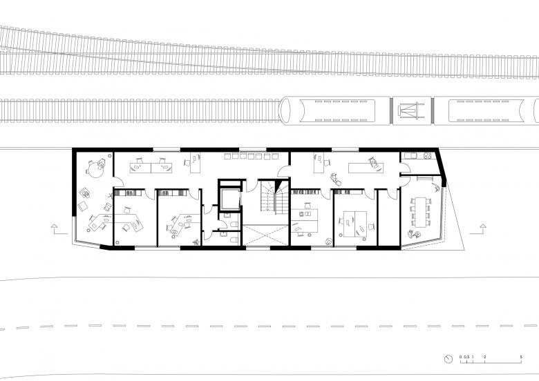
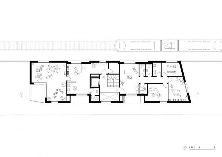
Seit 2013 entsteht in enger Zusammenarbeit mit den Korbacher Bürgern, der Stadtverwaltung, dem Bürgermeister und unserem Büro ein sozial und funktional durchmischtes Stadtquartier in direkter Nähe zum Hauptbahnhof. Das Gebäude der Vitos Kurhessen befindet sich auf einem sehr schmalen Grundstück zwischen Gleisfeld und der Straße Am Hauptbahnhof. Ursprünglich sollten hier nur sieben Garagen gebaut werden. Wir konnten jedoch die Bauherren davon überzeugen, noch zwei weitere Etagen zu bauen, um einen angemessenen Stadtbaustein in der Umgebung zu erzeugen. Der obere Gebäudeteil kragt nach allen Seiten aus, wodurch die Nutzfläche erheblich erweitert werden konnte.
Das Gebäude beherbergt nun nicht nur Garagen, sondern auch eine psychiatrische Ambulanz für Kinder und Jugendliche der Vitos Kurhessen Klinik, die durch ihre Nutzung und ihre markante Form einen lebendigen Ort in der Nachbarschaft darstellt.

Photo © Christian Eblenkamp
Photo © tschinkersten
Photo © tschinkersten
Photo © tschinkersten
Visualization © Christoph Hesse Architekten
Drawing © Christoph Hesse Architekten
Drawing © Christoph Hesse Architekten
Drawing © Christoph Hesse Architekten
© Christoph Hesse Architekten
Photo © tschinkersten
© tschinkersten
© tschinkersten
Photo © Christoph Hesse Architekten
Photo © Christoph Hesse Architekten
Photo © Christoph Hesse Architekten
Year
2016

Other Projects by Christoph Hesse Architekten 

House of Knowledge
Xinyang, China
Sonnenklang
Referinghausen, Germany
Mosque of Nature
Egypt
StrohTherme
Referinghausen, Germany
Pflug
Referinghausen, Germany